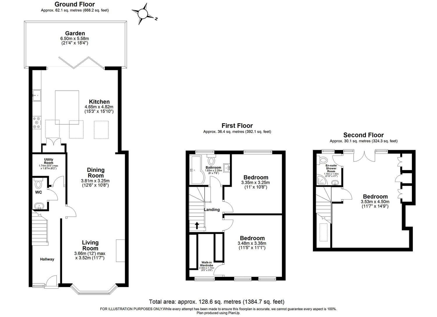
A floor plan is a scaled diagram of a property’s layout, showing the arrangement of rooms, spaces, and features. It’s essential for marketing as it helps potential buyers or renters understand the flow and size of the property, aiding their decision-making process.
We offer a variety of floor plans, including 2D floor plans, 3D floor plans, interactive floor plans, and fully furnished layouts to suit different marketing needs.
Our floor plans are highly accurate, created using precise measurements provided by property developers, architects, or through our on-site measuring service.
Yes, our floor plans include detailed measurements of rooms, walls, and other spaces to give a clear representation of the property’s dimensions.
Absolutely! We can create floor plans based on architectural blueprints, sketches, or other design documents, even if the property is not yet complete.
- 2D Floor Plans: Flat, bird’s-eye views that showcase room dimensions and layouts simply and clearly.
- 3D Floor Plans: Enhanced, realistic visualizations that include furniture, textures, and colours to provide a more immersive view of the property.
Turnaround times depend on the complexity of the property. Simple 2D floor plans are typically ready within 24–48 hours, while more detailed 3D or interactive plans may take 2–5 business days.
Yes, we can customize floor plans with your branding, logo, colour scheme, and specific design preferences to ensure they align with your marketing materials.
Yes, we offer interactive floor plans that allow potential buyers or renters to explore the property digitally. These plans can include clickable hotspots, virtual walkthroughs, and detailed room information.
Pricing varies based on the type of floor plan (2D, 3D, or interactive) and the size of the property. Contact us for a customized quote tailored to your project’s needs.







